上掀

義大利EFFEGI 上掀緩降鉸鍊UNICO FLAP

義大利EFFEGI 上掀緩降鉸鍊UNICO FLAP

上掀撐桿
  • 01.PNG
  • 02.PNG
  • 03.PNG
詳細介紹
商品特色
■ 開啟隨意停,關門具有緩衝效果
■ 三種安裝方式:明裝式、崁入式、崁入式+側板飾蓋
■ 安裝無需加其它西德鉸鍊或平台鉸鍊,使桶身看起來更為美觀
■ 五金本身可3D調整

商品規格 
■ 適用門厚:18-30mm
■ 適用門高:180-480mm
■ 載重:2.5-11.5kg ( 請參照規格對照表 )
■ 飾蓋顏色:灰色、白色z

/ 門片加工尺寸圖 /



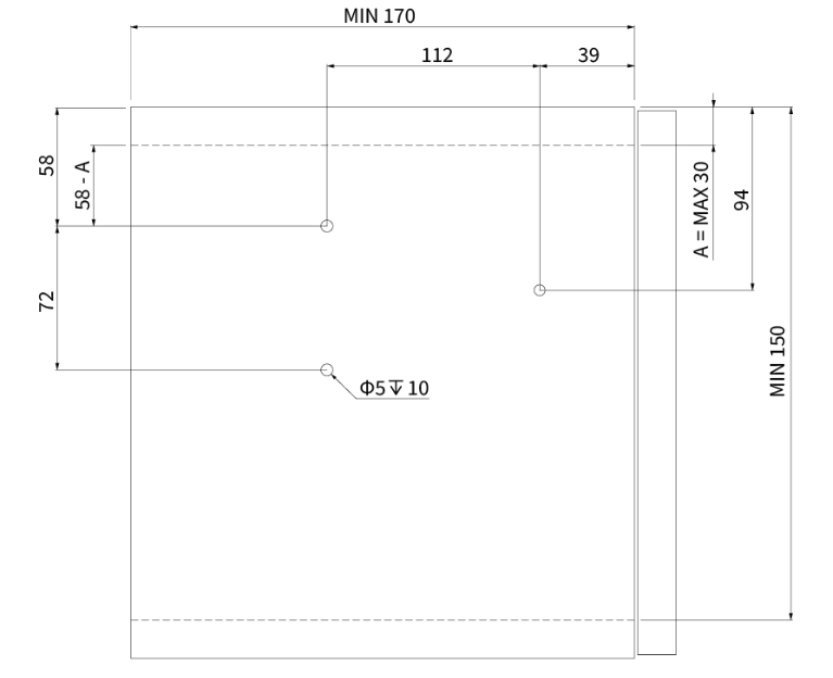
/ 明裝式-側板加工尺寸圖 /

/ 崁入式-側板加工尺寸圖 /

/ 崁入式+側板飾蓋-側板加工尺寸圖 /

/ 規格對照表 /

/ 五金內容物 /